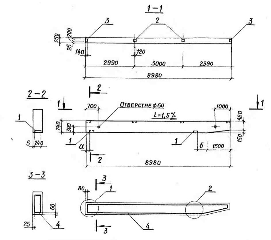
Балка навеса 2БН 10,5-1 представляет собой железобетонную конструкцию, предназначенную для использования в строительстве навесов, козырьков, навесных конструкций и других объектов. Она имеет прочную железобетонную основу, которая обеспечивает надежность и долговечность конструкции. Балка навеса 2БН 10,5-1 отличается высокой степенью устойчивости к воздействию внешних нагрузок и атмосферных условий, что делает ее идеальным выбором для использования в различных строительных проектах.
Балка навеса 2БН 10,5-1 широко применяется в строительстве для создания надежных и прочных навесов, козырьков и других навесных конструкций. Она может использоваться как в жилом, так и в коммерческом строительстве для защиты от осадков, солнечных лучей и других внешних воздействий. Благодаря своей прочности и долговечности, балка навеса 2БН 10,5-1 является надежным элементом конструкции, который обеспечивает безопасность и устойчивость объекта на протяжении длительного времени.









